The Haunting of Hill House

Photoshop | 2021 | Quadramics Theater Company

My design for the stage adaptation of The Haunting of Hill House began with my passion for its source novel by Shirley Jackson.  With a script full of nods to the supernatural genre, I wanted the design to reflect its rich history. I distinguished the two rooms of Hill House by color to reflect the story’s connection to Edgar Allan Poe’s “The Masque of the Red Death”.  I also hand-painted each wall portraits as a family member that haunts the house.

Directors: Bilal Morsi and Blake Velick

Technical Director/Stage Manager: Anna Collins

Lead Carpenter: El Davenport

Lighting Designer: Juliet Dempsey

Sound Designer: Ava McGrory

Costume Designer: Ryly Ziese


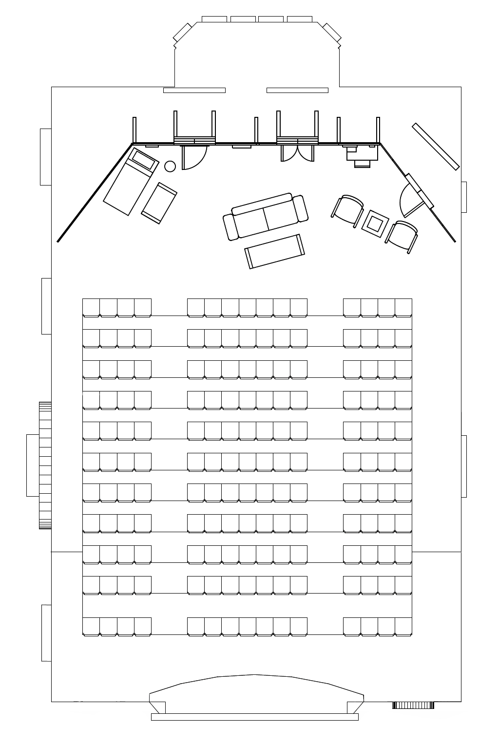
Sketches and Floorplan

Scale sketch in Photoshop, divided by individual flats.

Floorplan in Vectorworks.

In the early stages of the process, I hand sketched ideas in Photoshop to be in conversation with the director and other technical designers. I then created a clear groundplan in Vectorworks for installation and furniture placement.

Fabrication and Installation


Previous
Previous

Digital Window

Next
Next

Clue the Musical